Scroll down for floorplans.
Soft, tranquil, calm – they’re all words that come to mind when viewing Gawler Crescent by Ben Walker Architects. The warmth of oak timber – alongside the textural, white-rendered walls and the use of clean grey stone – offers harmony, punctuated by green foliage. What separates this home from most others, and holistically represents the retreat-like atmosphere is the mature palm tree at its core. The curved and tactile trunk offers a motif that is reflected throughout the surrounding architecture.

Gawler Crescent is the second project between Ben Walker Architects and the clients – a young family who work in the building industry – so a natural synergy unfolded through their relationship. “[They] were heavily involved in all elements of the design, selections for interiors and fittings, detailing and everything else in between,” says Ben Walker.
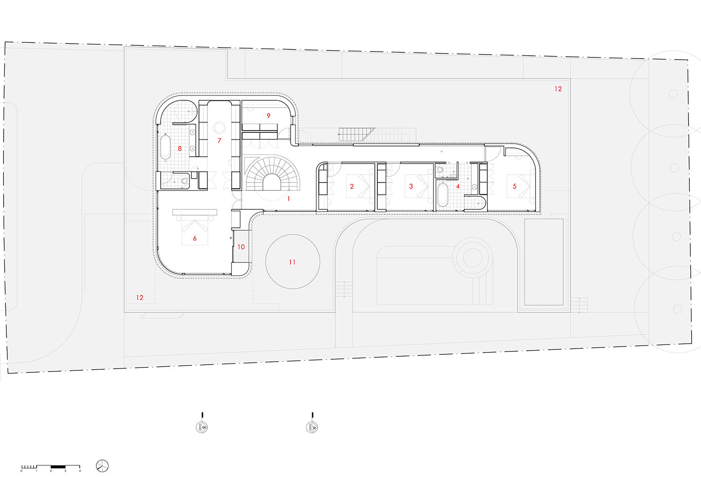
The home had to accommodate the growing family and provide space to entertain extended family and friends. They arrived at an L-shaped floorplan to create a private and shielded rear courtyard, embraced by the internal living rooms for easy flow between interior and exterior zones as well as capturing ample sunlight into the ground level. Equally, the courtyard and pool are in sight of the kitchen and lounge room, both useful for connecting with guests and watching little feet run through the spaces.

With the cold Canberra winters in mind, the courtyard provides a solar sink to invite warm afternoon rays into the house. Insulated walls, floors and high-performance double glazing in thermally broken frames further this conscious approach to a passive house. Meanwhile, on the upper floor, operable battened screens allow for a moderation of heat and privacy.

“The bronze-coloured battens reflect changing colour hues during the day as the sun moves around the building – the façade becomes a dynamic representation of the environmental conditions of the time,” says Walker.
Related: Aatos Design by the harbour


For Gawler Crescent’s materiality, the clients and architect considered the local vernacular. “The project incorporates strong masonry construction of concrete, stone and rendered brick to reference the typical finishes of existing buildings within the precinct,” says Walker.



However, they sought a softening through horizontal concrete parapet beams and curved soffits and beams at internal and external corners. “These curves are reflected in the geometry of ground-level gardens and terraces,” the architect continues.
Inside, those warm, textural materials and hues invite the sense of immersion, a harmonious elevation of the day-to-day and a chance to step away from the hustle and bustle of outside life. Oak flooring, timber-veneer joinery and carpentry, limestone benches, shelves, and matching limestone tiles and wall linings are highlighted through the broad window openings and skylights.


“A large round oculus skylight above the central spiral stair draws daylight down into the centre of the house during the daytime hours,” adds Walker.


As a contrast to the scale of the home, Ben Walker Architects created little moments to pause. In the formal living room, a small, elevated, cantilevered balcony faces the street to watch the world go by; to the rear, a modest outdoor terrace is framed by curved stone walls. On the first floor, a Juliette balcony anchors the dweller into the fronds of the palm tree — completing the retreat-like immersion of Gawler Crescent.






